一、顶装磁翻柱液位计选型概述及的详细介绍:
磁翻柱液位计是以磁性浮子驱动双色磁翻柱指示液位,可用于各种塔、罐、槽、球形容器和锅炉等设备的介质液位检测。可以做到高密封、防泄漏和适应高压、高温、腐蚀性条件下的液位测量,具有可靠的安全性,它弥补了玻璃板(管)液位计指示不清晰、易破碎的不足,不受高、低温度剧变的影响,不需多组液位计的组合。全过程测量无盲区,显示醒目,读数直观,且测量范围大。特别是现场指示部分,由于不与液体介质直接接触,所以对高温、高压、高粘度、有毒有害、强腐蚀性介质更显其优越性。比传统的玻璃板(管)液位计具有更高的可靠性、安全性、先进性、适用性。适用于冶金、石油、化工、船舶、环保、电力、造纸、制药、印染、食品、市政等行业的液位、油位、油水界面、泡沫界面的连续测量与控制。

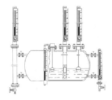
二、顶装磁翻柱液位计选型:
磁翻柱液位计测量液体时采用顶装或旁通管侧装方式。磁翻柱主体外加装翻柱液位指示器、液位开关及液位变送器。磁单元置于浮球内部或通过顶杆与浮球相连,当浮球连带磁单元随液位变化时,使磁性色块(磁翻板)翻转;磁性液位开关在对应液位点动作;同时液位传感器在浮球磁力的作用下,输出标准的变化电阻信号,再经过变送器把电阻信号转换成4~20mA电流信号输出。
三、适用范围
被测介质与指示结构完全隔离,密封性能好,防泄露、适应高压、高温、腐蚀条件下的液位测量,可靠性高
集现场指示、远传变送、报警控制开关于一体且可自由调整,功能齐全
双色指示带夜光、连续直观、醒目、测量范围大,观察方向可任意改变
耐振动性能好,能适应液位波动大的情况下工作
结构简单,安装方便,维护费用低
带精美的磁钢校正器,现场随意校调

四、技术参数:
测量范围:150~8000mm,对中心距超过8000mm的或远输条件不允许超过长度的液位计可采用分段制造。
工作压力:0.6;1.0;2.5;4.0;6.4;10Mpa
工作温度:F:120℃;G:200℃;H:450℃
精确度:±10mm
介质密度: 0.5~2.0g/cm3
介质密度差: ≥150kg/m3(测量界位)
环境振动:频率≤25Hz 振幅≤0.5mm
跟随速度: ≤0.08m/s
介质粘度: ≤0.4Pa.s,对于粘度大的介质或测量温度低时易结晶的介质,可选用加热夹套型液位计
过程连接:旁路侧面安装法兰:DN25,PN1.0或PN1.6、PN2.5、PN4.0、PN6.4、PN10
开关选项:可选择普通型、防爆型
变送器选项:可选JH系列干簧管液位变送器
可选JH系列磁致伸缩液位变送器
可选JH系列全智能带表显示液位变送器